Großes Interesse beim Bürgerinfo-Nachmittag am Bauprojekt „Ellinger Höhe“ in Niederberg
Stadt Koblenz und BPD-Projektentwickler GmbH luden Bürger zur Besichtigung auf dem Gelände der ehemaligen Fritsch-Kaserne ein
Koblenz. Wohnungssuche, Wohnungsnot und Wohnungsmangel sind schon lange ein Thema in Deutschland und vor allem auch jetzt wieder aktuell.
Die Ziele der Regierung sind groß angelegt: Städtebau, Sozialer Wohnungsbau, Leerstehende Gebäude oder Brachliegende Liegenschaften, Beschleunigung im Baugesetz und Kosten im Bausektor senken, sowie Mietpreisbremse.
All dies sind groß angelegte Visionen, die in den kommenden Jahren umgesetzt werden sollten.
Sehr groß war das Interesse vieler Bürgerinnen und Bürger am vergangenen Freitag, als die Stadt Koblenz und die BPD Immobilienentwicklung GmbH (BPD) zu Ihrer Bürgerinformationsveranstaltung zum Bauprojekt „Ellinger Höhe“ im Koblenzer Stadtteil Niederberg einluden.
In kurzer Zeit war der Raum im Bürogebäude auf der Niederberger Höhe gefüllt mit interessierten Besuchern, die sich teilweise zum ersten Mal informieren konnten und zum ersten Mal das Gelände überhaupt betreten durften.
Die Informationspalette war sehr groß. Nach kurzer Begrüßung durch den Koblenzer Baudezernent Prof. Dr. Andreas Lukas und dem BPD Leiter des Regionalbüros Koblenz Adrian Jukic wurden keine langen Vorträge gehalten, sondern im Raum waren offen Planungspläne ausgelegt, Architekturmodelle und vor allem viele Ansprechpartner verteilt, welche sich ab sofort allen Fragen zur Verfügung stellten. Mitgestaltend für diesen Infonachmittag in Niederberg waren die zuständigen Fachämter der Stadt Koblenz für Stadtentwicklung, Bauordnung, Tiefbauamt, Eigenbetrieb Grünflächen- und Bestattungswesen und das Koblenzer Jugendbüro.
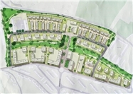
Es wurde die Planung und zukünftige Gestaltung des 12,5 Hektar großen Geländes anschaulich vermittelt, es gab die Möglichkeit eigene, ganz persönliche Ideen zu den Themen Wärmeversorgung, Mobilität und Verkehr zu notieren, sich über neue Wohnformen und zukünftigen Wohnbedarf zu informieren und vor allem zu erfahren was auf der „Ellinger Höhe“ entsteht und wie soll das aussehen!
Alle 30 Minuten konnten die interessierten Bürgerinnen und Bürger an einer Führung über das Gelände teilnehmen. Der große Bereich in der ehemaligen Kaserne ist aktuell noch von Abbrucharbeiten, riesigen Bauschutt- und Erdbergen sowie zu entsorgenden Altlasten, Schrott und ähnlichem Sondermüll geprägt. Viele alte, schon lange marode Kasernengebäude sind bereits entfernt.
Aus Alt wird Neu zeigt sich hier in der Umsetzung des Wohnungsbaus. Wo früher große laute Panzer rollten sollen 880 Wohneinheiten für ca. 2000 Menschen entstehen. Mehrfamilienhäuser, Eigentumswohnungen, preisgebundener Wohnungsbau, Einfamilienhäuser und Gewerbe sollen hier Platz finden.
Im Grünen wohnen und leben ist dann nicht nur künstlich angelegt sondern auch durch alte Baumbestände schon vorgegeben. Nachhaltigkeit, Recycling von Abbruchmaterialien und Klimaschutz sind große Themen und Ziele, welche sich die Verantwortlichen gesetzt haben und auch erfüllen sollten. So wenig wie möglich von den zu entfernenden Bau- und Bodenmaterialien sollen das Gelände verlassen. Viele Menschen aus den näheren Stadtteilen und von viel weiter weg haben sich an diesem Tag auch bereits als interessierte Wohnungsuchende informiert.
Der Raum war den ganzen Nachmittag bis 19 Uhr im ständigen Wechsel mit angeregten Diskussionen gefüllt. Thema war unter anderem von Anwohnern im näheren Umkreis die zukünftige Verkehrsführung und Belastung durch die mehr entstehenden An- und Abfahrten durch mehr Bewohner im und um den Stadtteil Niederberg. Die Nähe zur Stadt und dem Gelände der Festung Ehrenbreitstein sind gute Gründe rechtzeitig mehr zu erfahren.
Fertigstellung ist für 2032 angedacht
Die Fertigstellung des geplanten Quartiers ist für 2032 angedacht, mit der Hoffnung verbunden, dass bereits 3-4 Jahre vorher einige wenige Wohneinheiten bereits bezugsfertig sind. Aber noch ist die Kaserne im Rückbau und die „Ellinger Höhe“ in Vorbereitung zur Baustelle. Moderner Wohnungsbau wird hier versucht, dringend benötigt und soll den rechtsrheinischen Stadtteil neben der Festung noch attraktiver machen. SCH
Die Informationspalette war sehr groß.
